T+FASHION|深圳|2023

项目名称:T+FASHION

地点:深圳福田/车公庙

项目面积:1000m2

空间设计:善思+本舍空间

服务内容:城市更新总规划+品牌策划+视觉设计+室内外空间设计+软装设计

项目介绍:T+FASHION是天安数码城集团携手FDC时尚产业综合体共同打造的科技与时尚深度融合的产业创新服务平台,拥有2000㎡多功能物理空间,可提供多元化活动空间、科技产品时尚化研发、设计师孵化、时尚产品场景化展销、时尚产业链配套等服务。


室外改造方案


室外改造实拍


室内改造实拍


改造过程


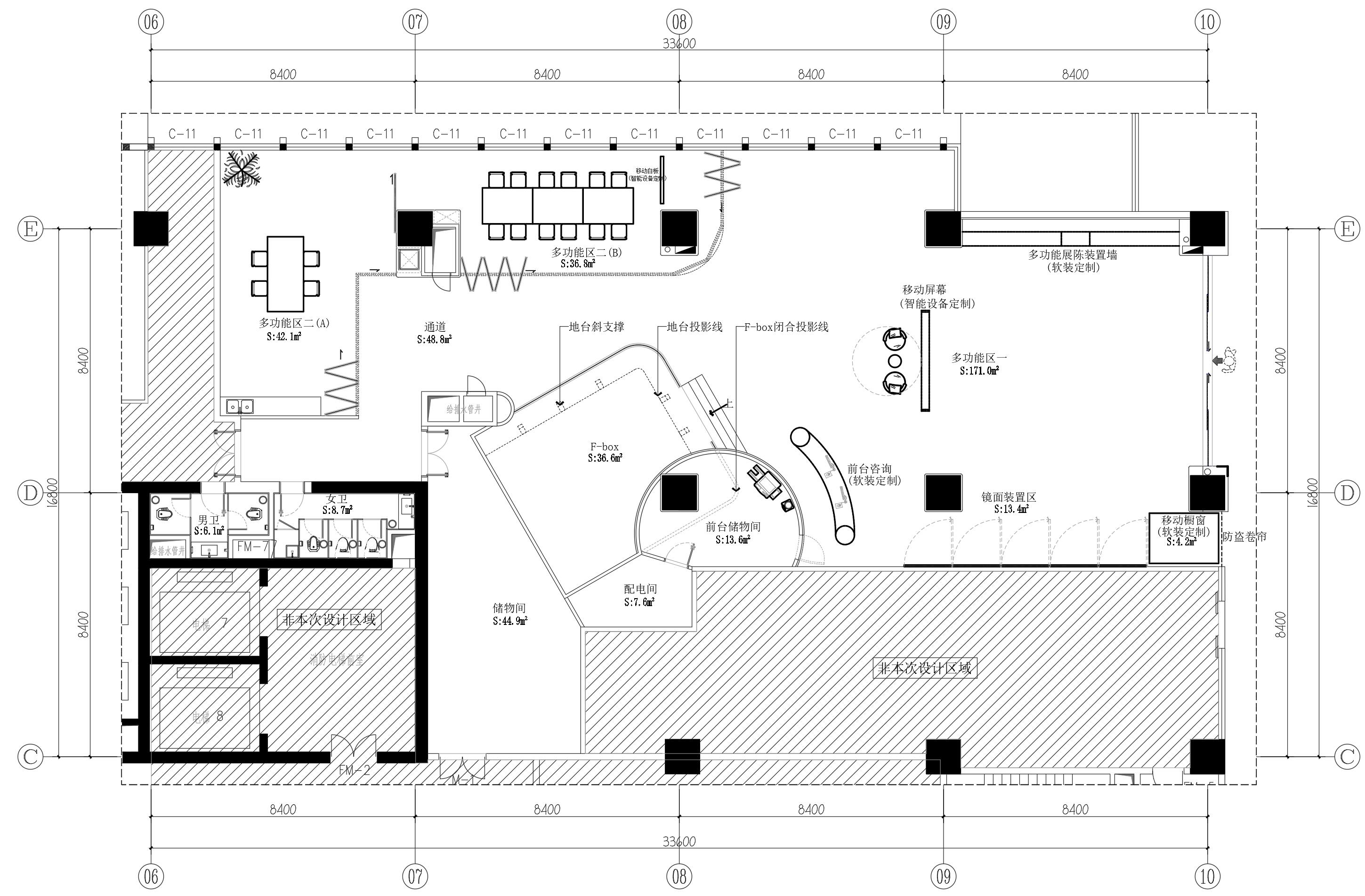
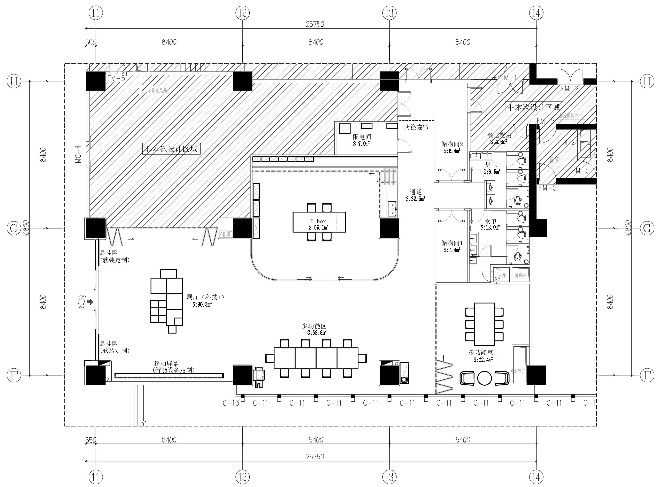
平面图


更多详情关注项目公众号