项目介绍:
浮世绘,是17-19世纪流行于日本的风俗画,前身为肉笔绘,到了日本封建社会晚期的江户时代,由于经济增长,城市里出现了市民文化。市民阶层对艺术品的需求量增大,肉笔绘逐渐向木版浮世绘过渡。可以说,浮世绘是江户时代人民生活的百科全书。
到了19世纪50年代,浮世绘被传到欧洲,在欧洲掀起了“日本风”(Japonism),印象派、后印象派以及新艺术运动都受到了浮世绘的影响。
本次展览选址深圳华润艺术中心美术馆,为浮世绘系列国内巡展规模最大的一次,主办方非常重视,不少作品为真迹,价值连城,所以对空间设计要求非常高,其中展览策划、空间设计由“善思”+"本舍空间"完成,数字影像、虚实场景、舞台特效由中、日、法三国艺术家共同完成,通过作品展示+沉浸式场景搭建,向艺术爱好者和潮流文艺青年们献上一场充满临场感与质感的“浮世绘”,让观众穿越时光,梦回江户。
展览回顾




























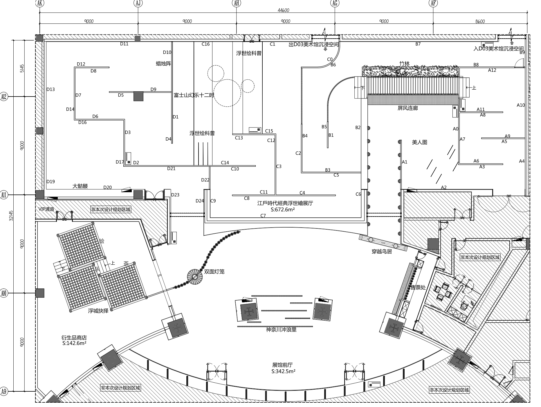
平面图

天花设备点位图

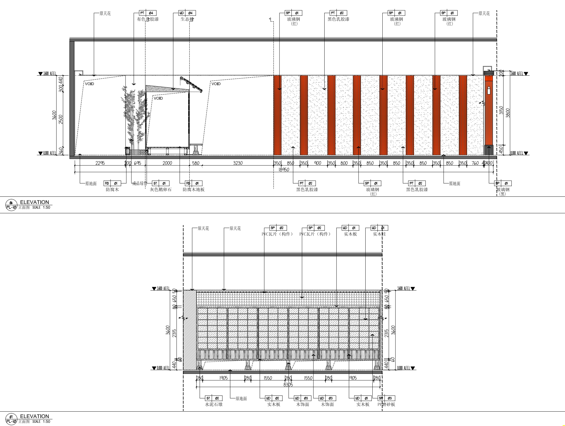
部分施工立面图


---end---